Description
Ce petit collectif de 6 logements est situé en limite de quartier résidentiel à deux pas des bords de la Garonne. La parcelle de 831m2 propose un parking de 9 places, d'un local à vélo, et un jardin arboré agréable exposé au Sud. La résidence s'intègre parfaitement à son environnement naturel et végétal.
À quelques kilomètres de Toulouse et de Pin-Justaret, découvrez Roquettes entre les bords de la Garonne et le ruisseau de l'Ousse. Un village dynamique, proche de Portet sur Garonne ou Roques-sur-Garonne, grands centres d'activité. La nature, les balades sportives et champêtres, tout est réuni ici pour combler vos envies de tranquillité, à deux pas du dynamisme toulousain.
- Statut Livré Mars 2024
- Bati 264 m2
- Localisation Roquettes (31)
- Type HPE
- Appartements6 (T1 - T2 - T3)
- EtagesR+1 (+ combles)
- Superficie23 - 61 m2
- Prix €136k - €282k
Commodités
La résidence bénéficie d’équipements et d’installations de premier ordre
Jardin paysagé
Céliers
Parking 9 places
Espace arboré
Espace vert
Éclairage extérieur
Alarme incendie
Pompe à chaleur
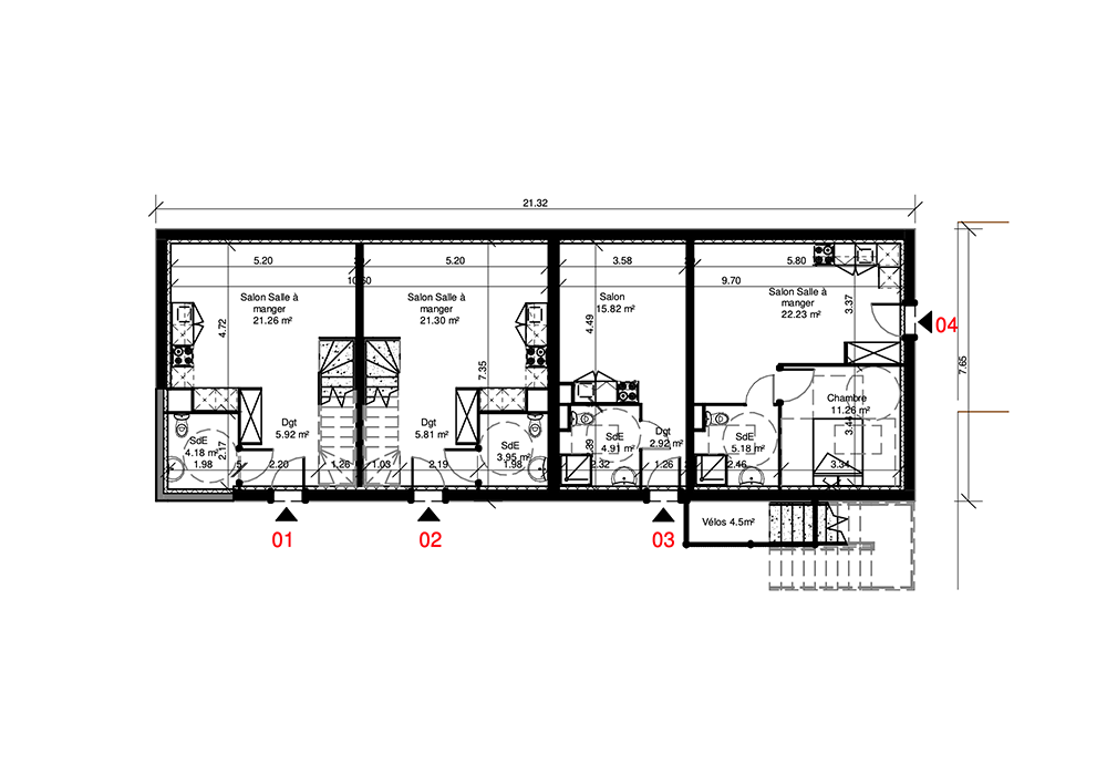
Plans




* Clicker pour agrandir l’image
Localisation
Adresse
20 rue Vincent Auriol 31120 Roquettes
Transports
- Plage: 150km
- Marché: 200m
- Aéroport: 30 min
- Hopital: 15 min
- Parc: 5 min
- Banque: 5 min
- Gare : 10 min
- Collège: 10 min
- Bus: 5 min
Informations
Plus de détail sur ce programme
Vous pouvez vous informer directement au 05 82 753 705
ou envoyer un message à contact@magellan-promotion.fr