Description

Les 12 logements blottis sur les coteaux confère à ce petit collectif un esprit confidentiel et intimiste. Eloigné de l'axe routier principal et relié par une voie préservée, la résidence s'intégre parfaitement à son environnement naturel et végétal. Les façades composées de larges terrasses se couronnent d'un toit de tuile roses pour la touche authentique.

À quelques kilomètres de Toulouse et de Castanet-Tolosan, découvrez Deyme sur les coteaux du Lauragais et la plaine de chers, traversée par le Canal du Midi sur un plateau entouré de petites vallées. Un village étonnant, ses habitants accueillants, sa nature, ses balades sportives et champêtres. Tout est réuni ici pour combler vos envies de tranquillité, à deux pas du dynamisme toulousain.

  • Statut Livré Janvier 2020
  •                                    
  • Bati 2000 m2
  • Localisation Deyme (31)
  • Type BBC - RT2012
  • Appartements12 (T2 - T3 - T4)
  • EtagesR+2
  • Superficie42 - 91 m2
  • Prix €72k - €200k

Commodités

La résidence bénéficie d’équipements et d’installations de premier ordre

Jardin paysagé

Céliers

2 places de Parking

Éclairage extérieur

Terrasses

Ascenseur

Alarme incendie

Pompe à chaleur

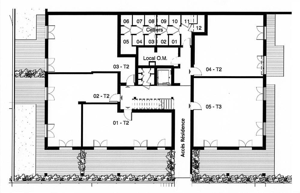
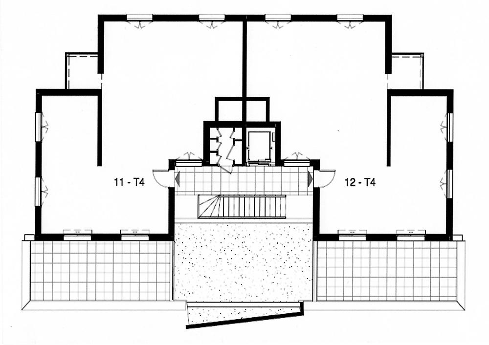
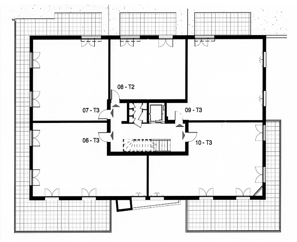
Plans

Villa des coteaux
Villa des coteaux
Villa des coteaux
Villa des coteaux

* Clicker pour agrandir l’image

Video

Localisation

Adresse

17 chemin de Rivals 31450 Deyme

Transports

  • Plage: 150km
  • Marché: 200m
  • Aéroport: 30 min
  • Hopital: 15 min
  • Parc: 5 min
  • Commerces: 5 min
  • Metro : 15 min
  • Collège: 10 min
  • Bus: 5 min

Informations

Plus de détail sur ce programme

Vous pouvez vous informer directement au 05 82 753 705
ou envoyer un message à contact@magellan-promotion.fr